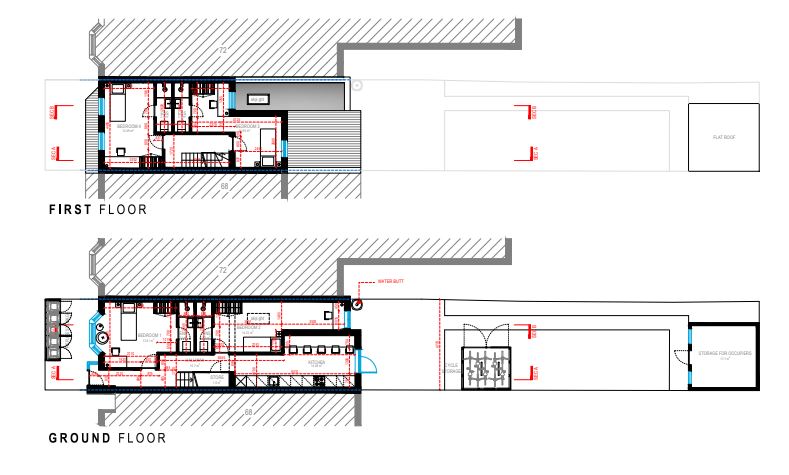
Kings Road, Edmonton, Enfield N18 2PNAppeals & Enforcement3 December 2025 Appeal Decision – 3362861 (1)Download ClientPrivateDateJuly 2025StatusAllowedBoroughEnfieldPlannerRedwoods Planning TeamShare