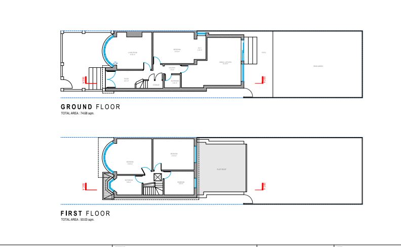
Dudden Hill Lane, London NW10 1AU, UKAppeals & Enforcement3 December 2025 Appeal Decision 3356539Download ClientPrivateDateJuly 2025StatusAllowedBoroughBrentPlannerRedwoods Planning TeamShare