Skip to content Skip to footer

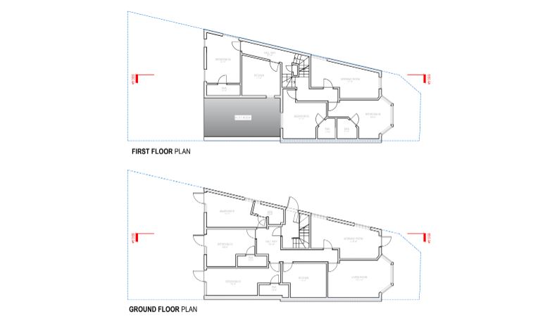
Lea Bridge Road, Hackney, London, E5 9QD

ClientPrivateDateDecember 2025StatusGrantedBoroughHackneyPlannerRedwoods Planning TeamShare

×